Icon

Eelderdiephof Utrecht

Onder optie
€ 2.350 per maand
Woonoppervlakte: 63 m2
21

Licht en super comfortabel 3-kamerhoekappartement op de begane grond met royaal terras grenzend aan de binnentuin en eigen afgesloten parkeerplaats en privé-berging in de onderbouw gelegen in de populaire wijk Parkhaven.

Het moderne kleinschalige appartementencomplex ligt in de woonwijk Dichterswijk op steenworp afstand van de oude Veilinghaven met historische woonschepen, U- Trechters, gezellige restaurants met terrassen. Diverse winkels, supermarkten, het Centraal Station en het stadscentrum zijn op loopafstand. Het appartement kenmerkt zich door een zeer efficiënte indeling en fantastische ligging midden in de stad Utrecht. Toch is het appartement zeer rustig en in het groen en nabij de uitvalswegen gelegen.

INDELING

Begane grond:
Modern entree met belbord en videofoon, welke toegang geeft tot het trappenhuis met lift, berging en de afgesloten parkeergarage.

Begane grond:
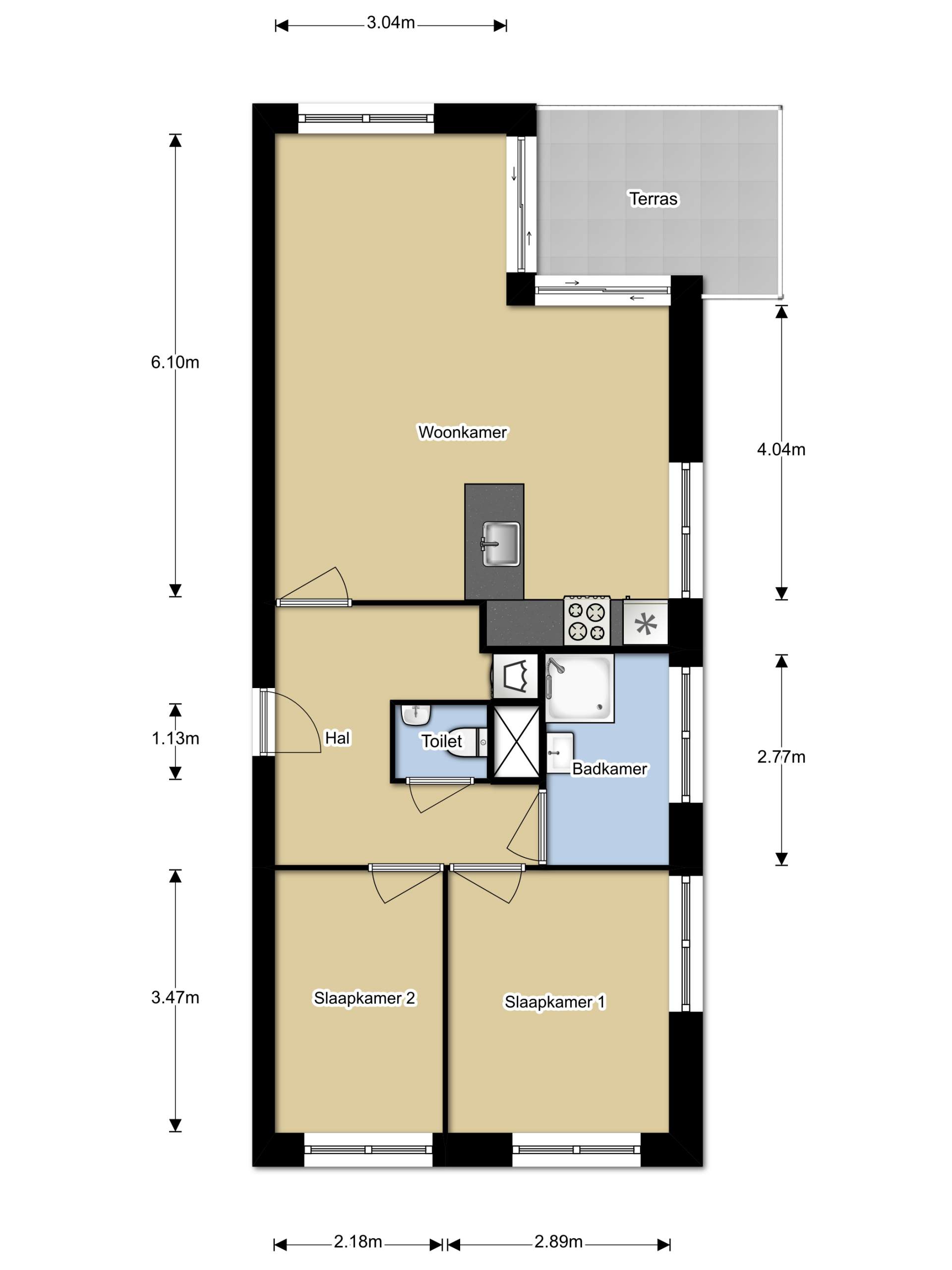
Entree, gang, wasruimte/berging, modern toilet met wandcloset, L-vormige woonkamer met luxe open keuken voorzien van diverse inbouwapparatuur, keramische kookplaat, combi-oven, vaatwasser en afzuigkap, koelkast met vriesvak, schuifpui naar zonnig terras (ca. 3.20 x 2.00m) grenzend aan de binnentuin, slaapkamer
(ca. 3.50 x 2.20m), slaapkamer (ca. 3.50 x 2.90m), badkamer voorzien van douche en vaste wastafel.

Bijzonderheden:
- Geschikt voor een werkend stel of iemand alleen;
- Huurperiode voor minimaal 12 maanden en daarna onbepaalde tijd;
- Waarborgsom van 2 maanden huur;
- Inkomenseis: 3 keer de maandhuur (bruto);
- Eigen berging en parkeerplaats in de onderbouw;
- Geen huisdieren;
- Verplichte professionele eindschoonmaak te verrekenen met de waarborgsom;
- Ingangsdatum huur: vanaf 20 februari 2026.

----------------------------------------------------------------------------------------------------------------------------------------------------------------

Bright and extremely comfortable 2-bedroom corner apartment on the ground floor, featuring a spacious terrace adjoining the communal courtyard garden, a private enclosed parking space, and a private storage room in the basement. The apartment is located in the popular Parkhaven area.

The modern, small-scale apartment complex is situated in the residential Dichterswijk, just a stone’s throw from the old Veilinghaven with its historic houseboats, Utrecht locals (“U-Trechters”), and cozy restaurants with terraces. Various shops, supermarkets, Central Station, and the city center are all within walking distance. The apartment is characterized by a very efficient layout and a fantastic central location in the city of Utrecht. Despite this, the apartment is quiet, surrounded by greenery, and conveniently located near main access roads.

LAYOUT

Ground floor (building entrance):
Modern entrance with doorbell panel and video intercom, providing access to the stairwell with elevator, storage rooms, and the secured parking garage.

Apartment (ground floor):
Entrance hall, hallway, laundry/storage room, modern toilet with wall-mounted WC, L-shaped living room with a luxury open-plan kitchen equipped with various built-in appliances including a ceramic hob, combi oven, dishwasher, extractor hood, and refrigerator with freezer compartment. Sliding doors lead to a sunny terrace (approx. 3.20 x 2.00 m) adjoining the communal courtyard garden. Two bedrooms (approx. 3.50 x 2.20 m and 3.50 x 2.90 m), and a bathroom fitted with a shower and washbasin.

Additional information:
Suitable for a working couple or a single person;
Minimum rental period of 12 months, thereafter for an indefinite period;
Security deposit equal to 2 months’ rent;
Income requirement: 3 times the monthly rent (gross);
Private storage room and parking space in the basement;
No pets allowed;
Mandatory professional end-of-tenancy cleaning to be settled with the security deposit;
Rental start date: from 20 February 2026.

Lees volledige beschrijving Beschrijving inklappen

Kenmerken

Overdracht
Prijs € 2.350 per maand
Status Onder optie
Aanvaarding 20-02-2026
Oppervlakten en inhoud
Woonoppervlakte 63 m2
Inhoud 220 m3
Overig
Energielabel A
Woonlagen 1
Parkeren Parkeergarage
Aanvaarding

20-02-2026

Bezichtiging?

Bezichtiging aanvragen

Interesse in deze woning? Gebruik onderstaand formulier om te reageren op deze woning.
Let op! Enkel reacties via dit contactformulier worden in behandeling genomen. Telefonisch is het niet mogelijk om te reageren op deze woning.

Voor deze woning geldt een minimale inkomenseis van € 7.050 (bruto maandsalaris van 3x de maandhuur).
Neem de volgende informatie op in onderstaand bericht:
  • Ben je student, in loondienst of zelfstandig ondernemer?
  • Indien: werkend, voor welk bedrijf? Indien: studerend, welke studie/welke instelling?
  • De gewenste huurperiode (voorkeur startdatum en verwachte huurperiode)
  • Aantal bewoners en de relatie onderling (gezin/partners/vrienden)
  • Bruto jaarinkomen (eventueel ook dat van de partner)
  • Ondernemer; langer dan 3 jaar?
  • Geboortedatum en plaats
Ons nieuwe aanbod per e-mail ontvangen?
Ja graag, type aanbod:   

Ander aanbod

Te huur

Kromme Nieuwegracht Utrecht

€ 1.475 per maand

Woonoppervlakte: 54 m2

11

Super comfortabel 2-kamer appartement (ca. 54m²) verdeeld over 2 woonlagen in de historische binnenstad!

Te huur

Weg tot de Wetenschap Utrecht

€ 2.290 per maand

Woonoppervlakte: 70 m2

11

Verrassend en mooi appartement te huur in het onlangs grondig gerenoveerde “Huis Rijnsweerd”

Te huur

Gruttersdijk Utrecht

€ 250 per maand

Parkeerplaats beschikbaar op de Gruttersdijk!

Share
Back to top