Icon

Antonius Matthaeuslaan 94 Utrecht

Verkocht
Woonoppervlakte: 114 m2
21

In de geliefde wijk “Tuinwijk” ligt deze ruime en sfeervolle jaren ’30 bovenwoning, verdeeld over twee verdiepingen. Met twee royale slaapkamers, een prachtig terras op het zuidwesten én uitzicht op een rustig binnenterrein is dit een ideale plek om thuis te komen.

De woning is volledig uitgerust en zonder klussen te betrekken. De keuken is modern, badkamer luxe en strak stucwerk, maar ademt nog steeds de charme van vroeger. Authentieke details zoals de originele schouw, kamer-en-suite, paneeldeuren en het karakteristieke trappenhuis zijn behouden gebleven. Dankzij de vele ramen geniet u door het hele huis van een mooie lichtinval en bovendien beschikt de woning over maar liefst twee zonnige terrassen.

De ligging is uitstekend: op loopafstand vindt u buurtwinkels, een Albert Heijn, gezellige eetgelegenheden en het Griftpark. Met de fiets bent u binnen vijf minuten in het bruisende stadscentrum en ook de uitvalswegen en het openbaar vervoer zijn eenvoudig bereikbaar.

Indeling

Begane grond:
Entree/hal met meterkast en trapopgang naar de eerste verdieping.

Eerste verdieping:
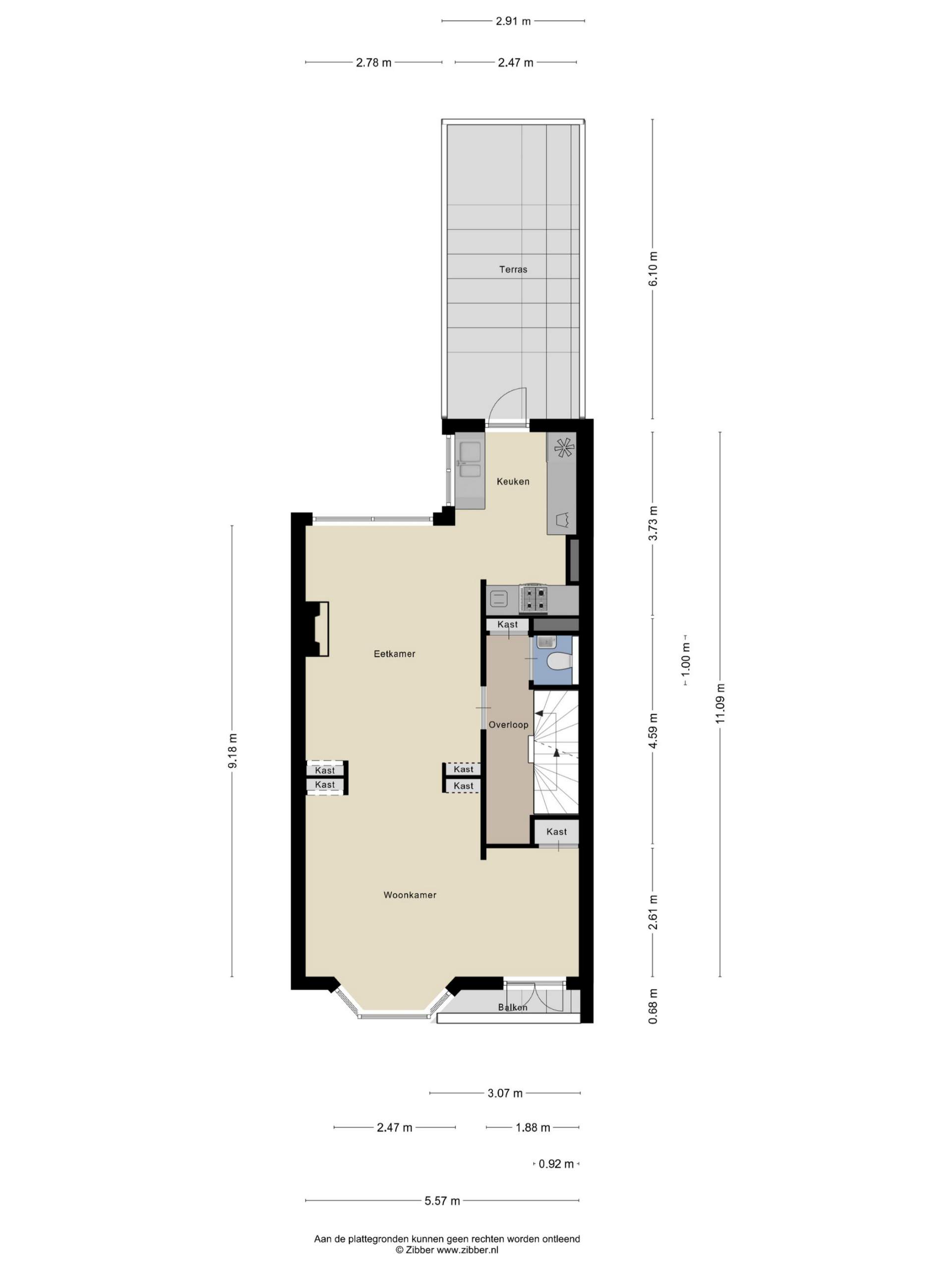
Ruime overloop met garderobekast en toiletruimte. De royale, lichte woonkamer heeft een hoog plafond, een prachtige lamelparketvloer, een sfeervolle erker en een doorgebroken zijkamer met toegang tot een klein balkon aan de voorzijde. De open keuken is modern en uitgerust met inbouwapparatuur: een gasfornuis, oven (2019), vaatwasser, koel-vriescombinatie (2018) en afzuigkap. Vanuit de keuken bereikt u het eerste – zeer ruime – dakterras, ideaal gelegen op het zuidwesten.

Tweede verdieping:
Overloop met daklicht, tweede toilet en een praktische wasruimte met cv-ketel en toegang tot het tweede dakterras, eveneens op het zuidwesten. Twee slaapkamers met laminaatvloer en vaste kastenwanden. De moderne badkamer is voorzien van een ligbad, aparte inloopdouche, wastafel en designradiator.

Bijzonderheden:
- Verwarming en warm water via cv-ketel (2017).
- Geheel voorzien van dubbel glas (m.u.v. lichtkoepel).
- Praktische was-/droog-/strijk-/opbergruimte.
- Parkeren met vergunning.
- VvE: gezamenlijke opstalverzekering en ingeschreven bij de KvK (totaal 2 leden)
- Er wordt een maandelijkse bijdrage voldaan van € 122,- en er wordt gespaard;
- Oplevering: in overleg, ca. november 2025.

------------------------------------------------------------------------------------------------------------------------------------------------------------------------

In the sought-after neighborhood “Tuinwijk” lies this spacious and charming 1930s upper-level home, spread over two floors. With two generous bedrooms, a beautiful southwest-facing terrace, and views over a quiet courtyard, this is the perfect place to come home to.

The property is fully equipped and ready to move into without any renovation work. The kitchen is modern, the bathroom luxurious, and the plasterwork sleek, while still preserving the charm of the past. Authentic details such as the original fireplace, kamer-en-suite layout, paneled doors, and the characteristic staircase have been retained. Thanks to the many windows, the home enjoys abundant natural light throughout, and in addition, it offers not just one but two sunny terraces.

The location is excellent: within walking distance you’ll find local shops, an Albert Heijn supermarket, cozy eateries, and the Griftpark. By bike, you can reach the vibrant city center in just five minutes, and major roads as well as public transport are easily accessible.

Layout

Ground floor:
Entrance/hall with meter cupboard and staircase to the first floor.

First floor:
Spacious landing with wardrobe closet and toilet. The bright, generous living room features a high ceiling, beautiful parquet flooring, a charming bay window, and an extended side room with access to a small front balcony. The open kitchen is modern and equipped with built-in appliances: a gas stove, oven (2019), dishwasher, fridge-freezer combination (2018), and extractor hood. From the kitchen, you can access the first – very spacious – rooftop terrace, ideally facing southwest.

Second floor:
Landing with skylight, second toilet, and a practical laundry room with central heating boiler and access to the second southwest-facing rooftop terrace. Two bedrooms with laminate flooring and built-in wardrobes. The modern bathroom is fitted with a bathtub, separate walk-in shower, sink, and designer radiator.

Details:
- Heating and hot water via central heating boiler (2017)
- Fully double-glazed (except skylight);
- Practical laundry/ironing/storage room;
- Parking with permit;
- VvE: collective building insurance and registered with the Chamber of Commerce (2 members in total).
- Monthly contribution of €122, with savings reserve.
- Transfer: by mutual agreement, approx. November 2025.

Lees volledige beschrijving Beschrijving inklappen

Kenmerken

Overdracht
Status Verkocht
Aanvaarding In overleg
Oppervlakten en inhoud
Woonoppervlakte 114 m2
Inhoud 376 m3
Overig
Energielabel D
Woonlagen 2
Parkeren openbaar parkeren, betaald parkeren, parkeervergunningen
Aanvaarding

In overleg

Bezichtiging?

Bezichtiging aanvragen

Reageren op deze woning is niet meer mogelijk.

Ander aanbod

Te koop

Van Egmondkade 96 Utrecht

€ 599.000 k.k.

Woonoppervlakte: 140 m2

42

DEZE AANBIEDING BETREFT 2 ADRESSEN: SWEDER VAN ZUYLENWEG 103 & VAN EGMONDKADE 96

Te koop

Berlagestraat 86 Utrecht

€ 279.000 k.k.

Woonoppervlakte: 34 m2

11

Goed onderhouden 2-kamer appartement per direct beschikbaar aan de Berlagestraat !

Te koop

Frederik Hendrikstraat 128 BS Utrecht

€ 1.175.000 k.k.

Woonoppervlakte: 175 m2

41

Wonen op een absolute toplocatie in Utrecht-Oost – Frederik Hendrikstraat 128 Bis

Share
Back to top