Icon

Van Vollenhovenlaan 231 Utrecht

Verkocht
Woonoppervlakte: 103 m2
31

Ruim 4-kamer appartement met ruim balkon in Transwijk. Ben je op zoek naar een royaal en licht appartement op een fijne locatie in Utrecht? Dan is dit heerlijke 4-kamer appartement op de vijfde verdieping in de geliefde wijk Transwijk precies wat je zoekt! Met een ruim balkon op de zonzijde, een praktische indeling en uitstekende bereikbaarheid biedt deze woning alles wat je nodig hebt voor comfortabel wonen dicht bij de oude binnenstad. Echt een woning die je geheel naar eigen stijl kan opknappen.

De woning is rustig gelegen in de wijk Transwijk. Deze ligt gunstig ten opzichte van de uitvalswegen en voor de dagelijkse voorzieningen zoals, winkelcentrum, meerdere bus- en tramhaltes richting Utrecht Centraal (5 min). Voor de deur is voldoende parkeergelegenheid en het stadscentrum ligt op slechts tien minuten fietsen. 

In het park zijn leuke voorzieningen voor jong en oud. Zomers' is er ook af en toe een festival. Een perfecte plek om te ontspannen passief of actief. Voor de dagelijkse boodschappen is winkelcentrum Nova met de wekelijkse markt om de hoek of gezellig aan de overzijde van de fly-over in Oog en al.

Begane grond: 
Gemeenschappelijke afgesloten entree met intercom, lift, toegang tot ruime berging en het trappenhuis. 

Vijfde verdieping: 
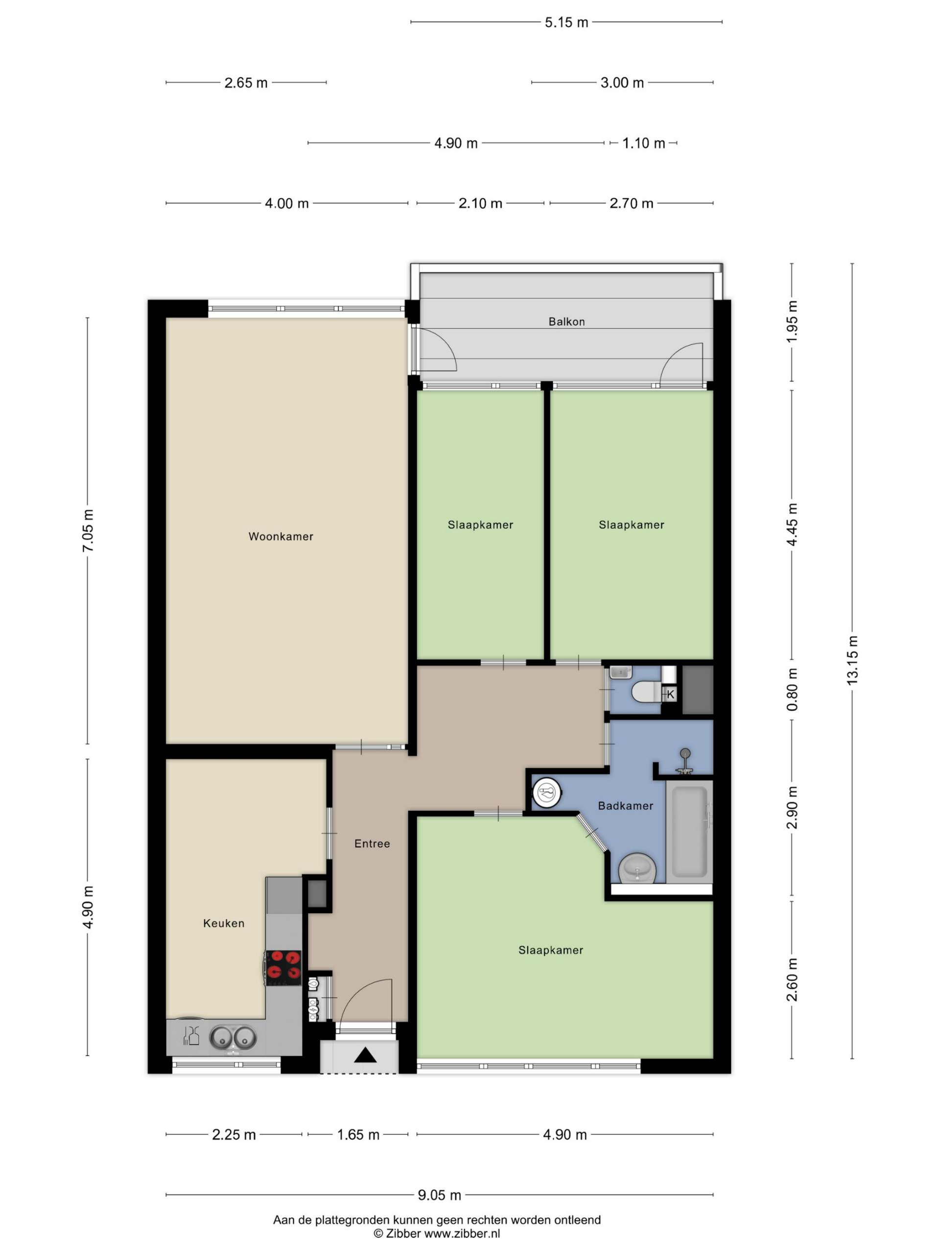
Entree in een ruime hal met toegang tot alle kamers. In de hal is een apart toilet en een meterkast.
De grote, lichte woonkamer heeft toegang tot het ruime balkon. De afgesloten keuken met inbouwapparatuur is voorzien van een inductie kookplaat, vaatwasser, koel-vries combi, oven en een afzuigkap. De andere kamers zijn goed te gebruiken als slaap-/werkkamers. De grote slaapkamer heeft toegang tot de badkamer. Deze is ook vanuit de hal te bereiken, zo ook het separate toilet. De badkamer is voorzien van een ligbad met douche, inloopdouche, wastafel, handdoekradiator, boiler (huur) en wasmachine.

Bijzonderheden:
- Energielabel heb betreft een geldig, maar niet geïndexeerd label;
- Gezonde en actieve VvE;
- De VvE kosten bedragen ca. € 238,- per maand;
- Verwarming middels stadsverwarming;
- Warm water middels twee elektrische (huur ca. € 27,- per maand) boilers van Eneco.
- Ruime berging in de onderbouw;
- Verkoop geschiedt onder voorbehoud gunning en toestemming verkoop van de erfgenamen;
- Niet zelf bewoning clausule;
- Oplevering: in overleg/kan snel.
- De artist impressies in deze verkooppresentatie zijn AI-gegenereerd.

Lees volledige beschrijving Beschrijving inklappen

Kenmerken

Overdracht
Status Verkocht
Aanvaarding In overleg
Oppervlakten en inhoud
Woonoppervlakte 103 m2
Inhoud 340 m3
Overig
Energielabel E
Woonlagen 1
Parkeren openbaar parkeren, betaald parkeren, parkeervergunningen
Aanvaarding

In overleg

Bezichtiging?

Bezichtiging aanvragen

Reageren op deze woning is niet meer mogelijk.

Ander aanbod

Te koop

Van Egmondkade 96 Utrecht

€ 599.000 k.k.

Woonoppervlakte: 140 m2

42

DEZE AANBIEDING BETREFT 2 ADRESSEN: SWEDER VAN ZUYLENWEG 103 & VAN EGMONDKADE 96

Te koop

Berlagestraat 86 Utrecht

€ 279.000 k.k.

Woonoppervlakte: 34 m2

11

Goed onderhouden 2-kamer appartement per direct beschikbaar aan de Berlagestraat !

Te koop

Frederik Hendrikstraat 128 BS Utrecht

€ 1.175.000 k.k.

Woonoppervlakte: 175 m2

41

Wonen op een absolute toplocatie in Utrecht-Oost – Frederik Hendrikstraat 128 Bis

Share
Back to top